Home with a view

Residential
anchor
Apartment renovation. Torino.

Complete apartment refurbishment in the heart of Porta Palazzo in Turin. A small loft with a single volume positioned in the centre of the house composed of kitchen, bathroom, library and walk-in closet. Sleeping and living areas are divided by large sliding metal doors, to isolate the bedroom from the rest of the home and hiding the wardrobe. All the accommodation is also characterized by the use of a concrete floor, wall and ceiling finish. Contrary to the materiality of this finishing, it has been decided to keep in the rooms the characteristic floor in wooden slatsĀ 

Project
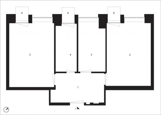
Before
Legend
1_entrance / 2_living room / 3_kitchen / 4_bathroom / 5_bedroom / 6_balcony
Project
After
Legend
1_entrance / 2_living/dining room / 3_kitchenette / 4_bedroom / 5_closet / 6_bathroom / 7_storage / 8_balcony